place
Наши филиалы: Гродно

Здание

Аренда Гродно, Аульская, 36

Сдается в аренду двухэтажное капитальное строение с земельным участком 0,2757 га. в г. Гродно ул. Аульская д.36.

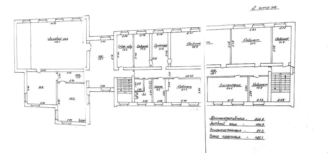
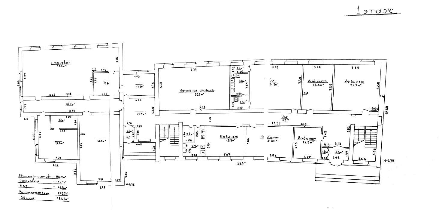
Общая площадь по СНБ 970 м2,

Коммуникации: твердотопливный котел, водопровод и канализация, электричество, интернет можно подвести, Высота потолка 5 метров. На первом этаже имеется рампа.

Хороший подъезд к зданию, парковочные места. Место отлично подойдет для Вашего бизнеса ( мебельное производство, швейное, склады и т.д..) Остановка общественного транспорта в 100 метрах от здания. Рассматриваем варианты сдачи в аренду по частям.

За подробной информацией просьба обращаться по телефону + и пишите Viber, Telegram. Возможен торг.

880.00 BYN 295.55$ 4.00 BYN/м2 1.34$/м2
Предложить свою цену
Заполните телефон!
Введите цену или отметьте галочкой "Консультация по кредиту"
Нажимая "Отправить" я даю согласие на обработку персональных данных
Область
Гродненская область
Район области
Гродненский
Район
Октябрьский
Площадь, м2
220
Кол-во помещений
21
Этаж
1/2
Участок, с
27.57
Номер и дата договора
20/2А от 14-05-2025
Посмотреть на карте