place
Наши филиалы: Гродно

В продаже жилой дом, расположенный по адресу пер. Тарусичский в микрорайоне Барановичи, 1998 года постройки, 2018 года реконструкции.

Отличное место для жизни и отдыха.

Двухэтажный кирпичный дом, общей площадью 197.6 метров квадратных, жилой площадью 134.7 метров квадратных, кухня 19.0 метров квадратных, выполнен из качественных материалов, влагостойких и хорошо сохраняющих тепло. Асфальтированный подъезд до дома.

Кровля покрыта шифером. Все коммуникации заведены в дом. Водоснабжение, канализация центральная, отопление газовым котлом. На кухне две плиты: газовая и электрическая. Оконное остекление осуществлено энергосберегающими стеклопакетами. На полу ламинат, половая доска, плитка.

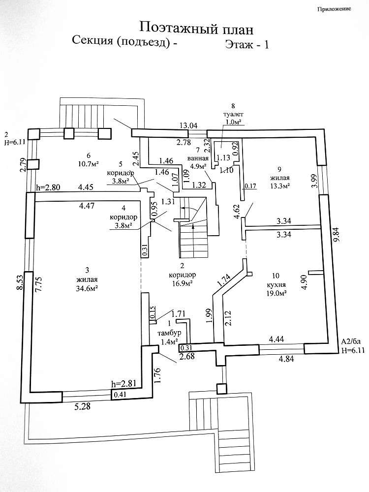
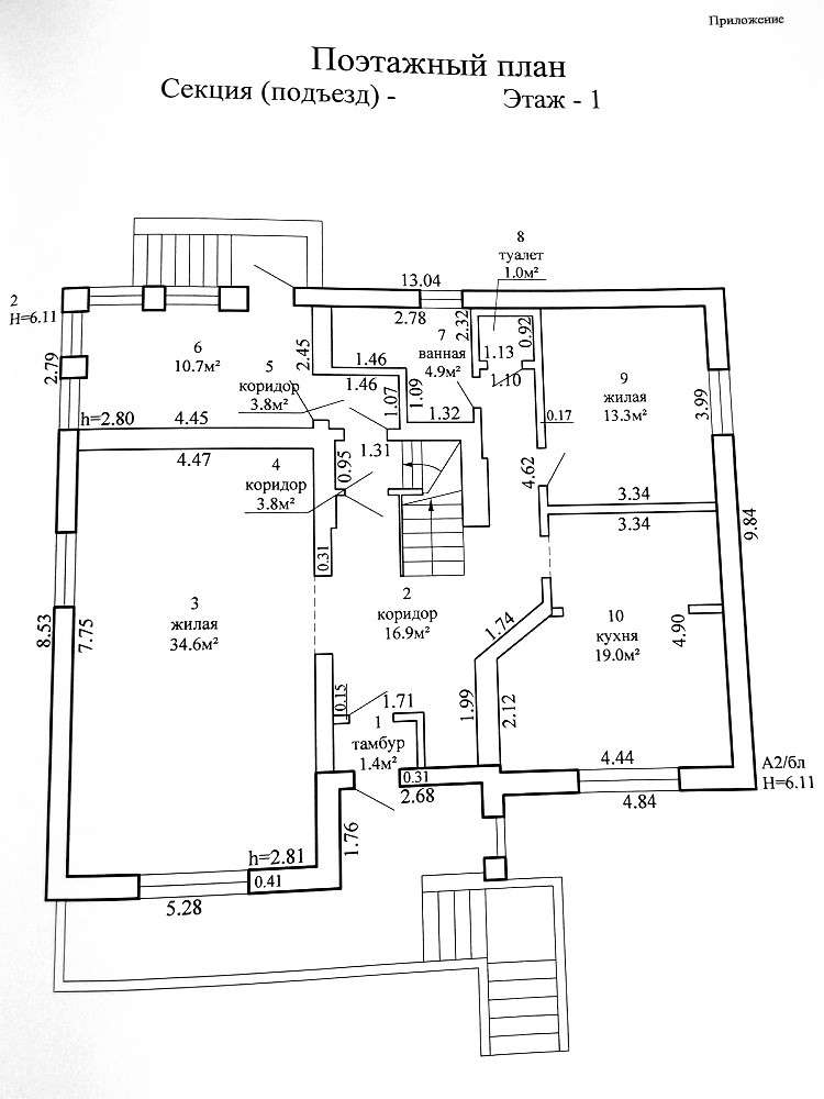
На первом этаже – просторная уютная гостиная, кухня, жилая комната, санузел, душевая. Два выхода – центральный и на задний дворик.

На втором этаже – пять жилых комнат, терраса, санузел, ванная комната.

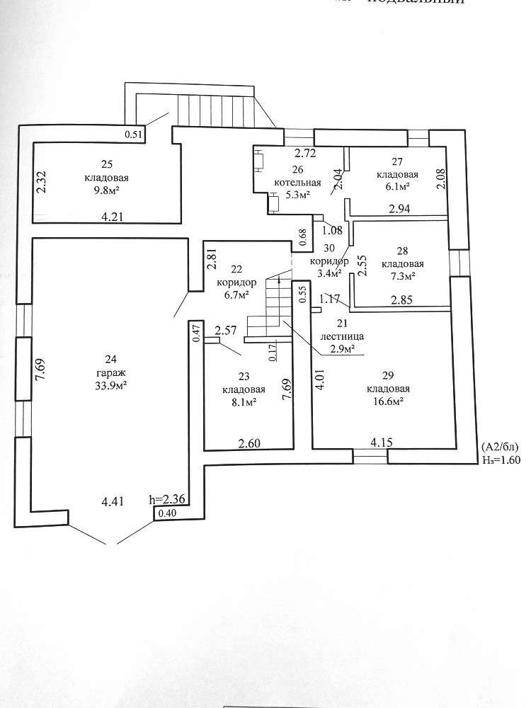
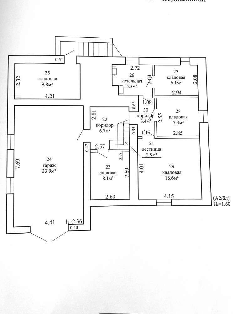
Имеется цокольный этаж, где расположены кладовые, котельная и гараж.

Перед входом – парковка для автомобилей.

Участок – 0,0906 га в ПНВ, с выделенной зоной отдыха, с плодовыми деревьями и кустами. На участке есть отдельно стоящий гараж со смотровой ямой, баня, стационарная теплица.

Дорожки вымощены декоративной плиткой. Двор огражден забором.

Если вы любите тишину, спокойствие и тепло домашнего очага, то этот дом для вас!

Заезжай и живи!

Звоните прямо сейчас!

Приходите! Смотрите! Покупайте!

500 220.00 BYN 168 000.00$ 2 531.47 BYN/м2 850.20$/м2
Предложить свою цену
Заполните телефон!
Введите цену или отметьте галочкой "Консультация по кредиту"
Нажимая "Отправить" я даю согласие на обработку персональных данных
Область
Гродненская область
Район области
Гродненский
Район
Октябрьский
Микрорайон
Барановичи
Участок, с
9
Площадь(О/Ж/К)
197.60/134.70/-
Год постройки
1998
Количество комнат
7
Крыша
Шифер
Номер и дата договора
390/17 от 26-08-2025
Посмотреть на карте