place
Наши филиалы: Гродно

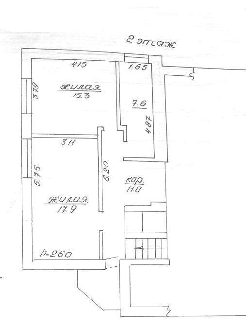
Этот дом в центре может стать Вашим! Дом кирпичный, 1995 года постройки, состоит из 5 жилых комнат и большого количества вспомогательных помещений. Снаружи утеплен. Дом с качественным ремонтом, продается с мебелью и техникой.

В доме имеется баня, бильярдная, гараж в подвальном помещении, три санузла, два камина, природный газ, центральная канализация, водопровод. Крыша - металлочерепица, пластиковые стеклопакеты. Участок 6,94 соток облагорожен и огорожен забором, практически прямоугольный. Земля в пожизненно наследуемом владении. Высажены туи, сосны, плодовые деревья. Двор выложен тротуарной плиткой. На участке организована зона барбекю, установлен фонтан, бассейн и беседка.

Идеальная площадь: общая 161,6м2, жилая 107,8 м2, кухня 11,3 м2.

Гарантируем юридическую чистоту сделки.

566 294.30 BYN 199 000.00$ 3 504.31 BYN/м2 1 231.44$/м2
Предложить свою цену
Заполните телефон!
Введите цену или отметьте галочкой "Консультация по кредиту"
Нажимая "Отправить" я даю согласие на обработку персональных данных
Область
Гродненская область
Район области
Гродненский
Район
Ленинский
Микрорайон
Переселка
Участок, с
6.94
Площадь(О/Ж/К)
161.60/107.80/11.30
Количество уровней
2
Год постройки
1995
Количество комнат
5
Материалы дома
Кирпич
Номер и дата договора
140/6 от 12-03-2025
Посмотреть на карте