place
Наши филиалы: Гродно

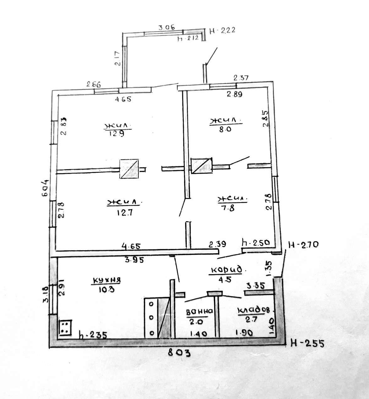
Когда хочется тишины, спокойствия и уединённости, и в тоже время комфортного образа жизни, мы продаем жилой дом для дружной семьи в живописном месте по улице Дмитриевка в г. Гродно. Одноэтажный дом 1979 года постройки. Общая площадь 60.9 м/кв,, жилая - 48.5м2, кухня - 10.3 м2.. Дом деревянный, обложен кирпичом, крыша – шифер. Вода - скважина, установлен насос. Канализация - местная. Установлен бойлер с запиткой от котла. В доме 4 комнаты, кухня, санузел, топочная. Участок 15 соток , ухоженный, огороженный забором. Хорошие подъездные пути. Не далеко остановка общественного транспорта. Если вы хотите слушать пение птиц по утрам, в тишине от городской суеты, в то же время рядом с городом - этот дом для вас! Поможем продать вашу недвижимость для покупки этой. Работаем с привлечение кредита, материнского капитала, жилищного баланса...

156 400.20 BYN 54 000.00$ 2 568.15 BYN/м2 886.70$/м2
Предложить свою цену
Заполните телефон!
Введите цену или отметьте галочкой "Консультация по кредиту"
Нажимая "Отправить" я даю согласие на обработку персональных данных
Область
Гродненская область
Район области
Гродненский
Район
Октябрьский
Микрорайон
Димитровка
Участок, с
15
Площадь(О/Ж/К)
60.90/48.50/10.30
Количество уровней
1
Год постройки
1979
Количество комнат
4
Материалы дома
Дерево
Крыша
Шифер
Водоснабжение
Скважина
Номер и дата договора
701/6 от 14-11-2023
Посмотреть на карте