place
Наши филиалы: Гродно

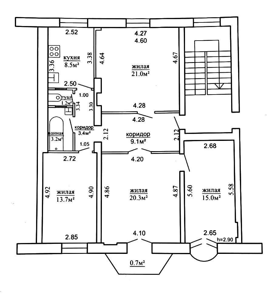
4 комнатная квартира

Продажа Гродно, Социалистическая, 24

4-комнатная квартира

Ул. Социалистическая, д.24

3/3 этажного кирпичного дома

1951 года постройки

96,1/70/8,5

 

Просторная 4-комнатная квартира общей площадью 96,1 квадратных метров, расположенная на 3 этаже в кирпичном доме с толстыми стенами в историческом центре города. Квартира с большим потенциалом для реализации самых интересных дизайнерских проектов. Отличная эргономичная планировка

с просторными комнатами на 2 сторону дома. Высокие потолки 2,9 метра, арочные окна, создающие простор и аутентичность помещения. Дом находится в самом центре города Гродно. Рядом пешеходная улица центра, парк Жилибера. При покупке мы дарим профессиональную консультацию дизайнера покупателю!

Возможно приобретение с кредитом. Юридическую чистоту гарантируем!

282 862.50 BYN 95 000.00$ 2 943.41 BYN/м2 988.55$/м2
Предложить свою цену
Заполните телефон!
Введите цену или отметьте галочкой "Консультация по кредиту"
Нажимая "Отправить" я даю согласие на обработку персональных данных
Область
Гродненская область
Район области
Гродненский
Район
Ленинский
Кол-во комнат квартиры
4
Кол-во раздельных комнат
4
Площадь(О/Ж/К)
96.10/70.00/8.50
Этаж
3/3
Год постройки
1951
Материалы дома
Кирпич
Балконы
Балкон: 1
Сан. узел (кол-во)
Раздельный: 1
Номер и дата договора
126/17 от 29-05-2025
Посмотреть на карте