place
Наши филиалы: Гродно

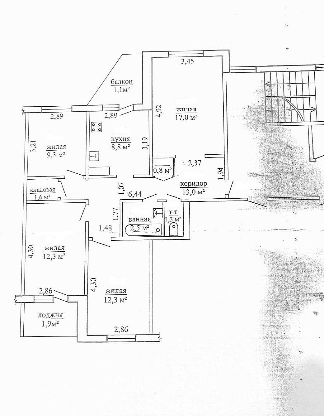
4 комнатная квартира

Продажа Гродно, Лиможа, 18

Продается просторная светлая 4- комнатная квартира хорошей планировки.

Панельный дом 1987 года на ул. Лиможа, д. 18.

5-й этаж 5-этажного дома. Никаких соседей над головой. Общая площадь 81.9 м2, жилая - 50.9 м2, кухня - 8.8 м2.

Санузел – раздельный.

За квартирой закреплено вместительное подвальное помещение.

Удобное оптимальное расположение дома. Развитая социальная, потребительская и транспортная инфраструктура. В шаговой доступности продовольственные магазины, поликлиника , школа, детские сады, аптеки, остановки общественного транспорта.

Уютный двор, приятный вид из окон на две противоположные стороны, аккуратный просторный подъезд сделают ваше проживание комфортным.

Поможем продать вашу недвижимость для приобретения новой. Полное юридическое сопровождение сделки. Возможно приобретение с кредитом и через кооператив «Жилищный баланс».

170 766.30 BYN 57 000.00$ 2 085.06 BYN/м2 695.97$/м2
Предложить свою цену
Заполните телефон!
Введите цену или отметьте галочкой "Консультация по кредиту"
Нажимая "Отправить" я даю согласие на обработку персональных данных
Область
Гродненская область
Район области
Гродненский
Район
Ленинский
Микрорайон
Девятовка-1
Кол-во комнат квартиры
4
Кол-во раздельных комнат
4
Площадь(О/Ж/К)
81.90/50.90/8.80
Этаж
5/5
Год постройки
1987
Материалы дома
Панель
Балконы
Лоджия: 1
Балкон: 1
Сан. узел (кол-во)
Раздельный: 1
Номер и дата договора
461/17 от 22-09-2025
Посмотреть на карте