place
Наши филиалы: Гродно

3 комнатная квартира

Продажа Гродно, Захарова, 24

Рассмотрим обмен на 2-х. квартиру с доплатой с Вашей стороны!

В продаже эксклюзивная, просторная трехкомнатная квартира по ул. Захарова, 24.

Квартира находится на девятом этаже 16-ти. этажного монолитного дома 2012 года постройки.

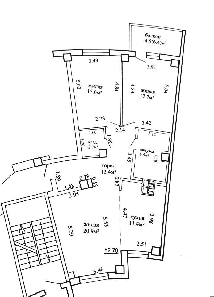
Общая площадь квартиры 91.7 м2, жилая - 54.2 м2, кухня - 11.4 м2. ( кухня совмещенная с гостиной комнатой 21м2).

Дорогой дизайнерский ремонт в современных тонах. Ремонт делали для себя, использовали только высококачественные материалы. Материалы покупали самые дорогие, импортные. В квартире остается дорогая встроенная кухня с бытовой техникой, встроенные шкафы в спальне и на лоджии.

Установлены окна ПВХ и металлическая входная дверь. Межкомнатные двери из натурального дерева. На полу уложена паркетная доска и керамическая плитка. Кухня оборудованная всей необходимой бытовой техникой.

Окружающий район обладает развитой инфраструктурой. В шаговой доступности расположены центральный рынок, автовокзал, детские сады, школа, аптеки, ТЦ «Kazarma Moll», «Гемма» и ряд более мелких специализированных магазинов, кофейни, кинотеатр Восток, молодежный центр «Галактика» и др. Отличное транспортное сообщение в любую точку города. Пешая близость к исторической части города .Не упустите возможность стать обладателем этой удивительной трехкомнатной квартиры. По всем интересующим вас вопросам обращайтесь по номеру телефона, Viber, Telegram, WhatsApp. Работаем с привлечение кредитных средств, с ПК "Жилищный баланс", а также поможем продать Вашу недвижимость для покупки этой.

457 064.00 BYN 155 000.00$ 4 989.78 BYN/м2 1 692.14$/м2
Предложить свою цену
Заполните телефон!
Введите цену или отметьте галочкой "Консультация по кредиту"
Нажимая "Отправить" я даю согласие на обработку персональных данных
Область
Гродненская область
Район области
Гродненский
Район
Октябрьский
Кол-во комнат квартиры
3
Кол-во раздельных комнат
3
Площадь(О/Ж/К)
91.60/54.20/11.40
Этаж
9/16
Год постройки
2012
Материалы дома
Монолит
Номер и дата договора
08/6 от 09-01-2024
Посмотреть на карте