place
Наши филиалы: Гродно

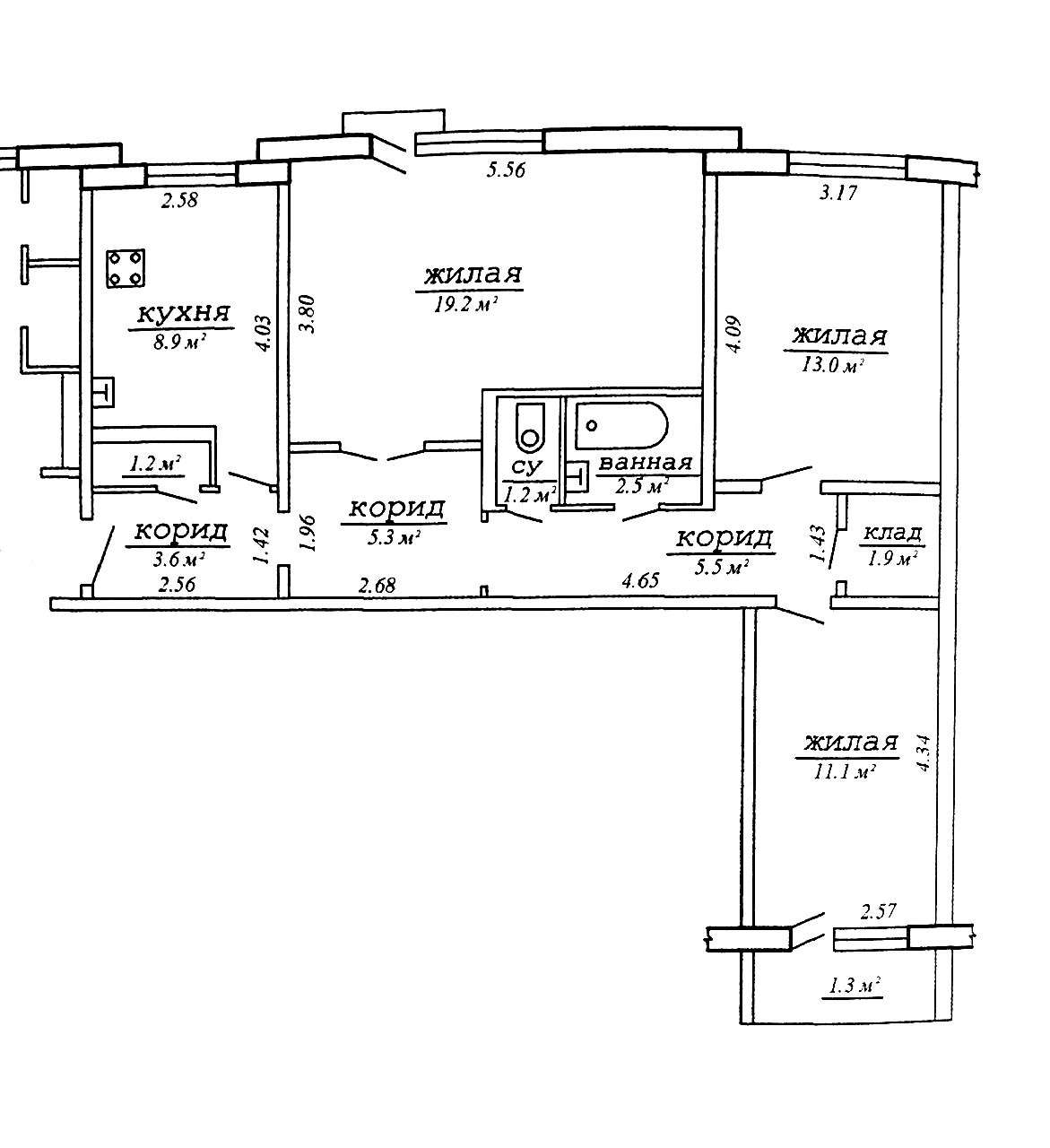
3 комнатная квартира

Продажа Гродно, Врублевского, 86

Продается светлая, уютная, просторная 3-х комнатная квартира «чешской» планировки по ул. Врублевского,86. Расположена на 5-ом этаже 9-ти этажного панельного дома 1976 года постройки.

Общая площадь 73,4м2; жилая – 43,3м2; кухня - 8,9м2.

Пол в квартире – ламинат, в прихожей и кухне - плитка. Потолки – окрашены, в одной комнате - натяжной. Стены в квартире – оклеены обоями, в кухне нанесена декоративная штукатурка. Санузел раздельный. Окна – стеклопакеты ПВХ. Металлическая входная дверь, межкомнатные двери из массива в одном стиле.

В прихожей установлен вместительный шкаф-командор.

Балкон остеклен рамой ПВХ, на полу – плитка, на стенах – декоративный камень.

За квартирой закреплена кладовая ячейка, расположенная на лестничной клетке.

По договоренности возможна продажа с мебелью и техникой.

Дом обслуживает председатель.

Рядом лесопарковая зона «Пышки», река «Неман».

Дом находится в районе с развитой инфраструктурой: рядом магазины, остановки общественного транспорта, школы и детские сады.

Поможем продать вашу недвижимость для покупки этой.

Возможно приобретение с привлечением кредита.

Юридическое сопровождение сделки гарантируем.

Звоните будем рады выслушать Ваши предложения!

196 353.30 BYN 69 000.00$ 2 675.10 BYN/м2 940.05$/м2
Предложить свою цену
Заполните телефон!
Введите цену или отметьте галочкой "Консультация по кредиту"
Нажимая "Отправить" я даю согласие на обработку персональных данных
Область
Гродненская область
Район области
Гродненский
Район
Ленинский
Микрорайон
Форты-1
Кол-во комнат квартиры
3
Кол-во раздельных комнат
3
Площадь(О/Ж/К)
73.40/43.30/8.90
Этаж
5/9
Год постройки
1976
Материалы дома
Панель
Балконы
Балкон: 1
Сан. узел (кол-во)
Раздельный: 1
Номер и дата договора
328/17 от 07-08-2025
Посмотреть на карте