place
Наши филиалы: Гродно

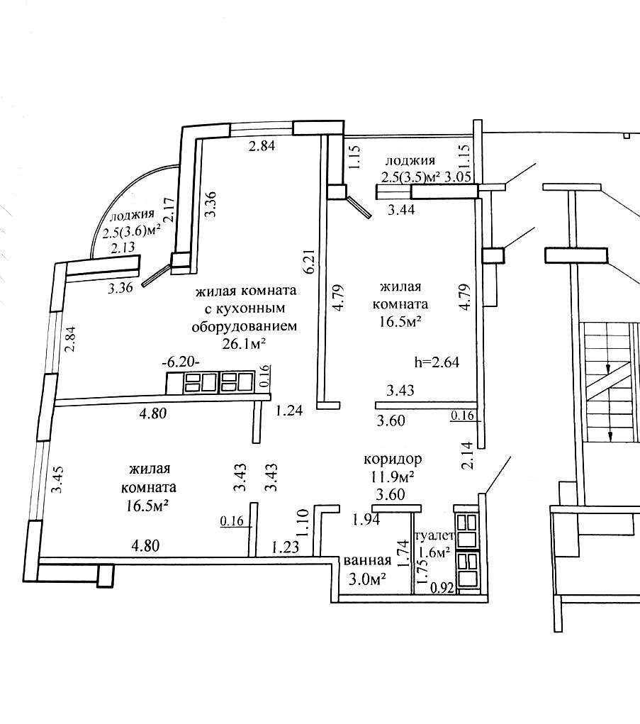
3 комнатная квартира

Продажа Гродно, Валентины Макаровой, 2А

Продается отличная светлая просторная 3-комнатная квартира с современным ремонтом, расположенная в молодом ,но уже развитом районе города по ул. Макаровой 2А. Панельный дом 2023 года, 13 этаж из 19.

Удобная большая парковка, хорошая детская площадка, аккуратный современный чистый подъезд , есть пандус , камеры видеонаблюдения . Все это сделает ваше проживание комфортным.

Параметры квартиры: общая площадь- 80,6 кв м, жилая площадь- 59,1 кв м, кухня- 26,1 кв м. Отличная удобная планировка

Квартира в отличном состоянии, с полной заменой всех сантехнических труб от застройщика. Материал полов: качественный керамогранит европейских брендов. Окна ПВХ (с установленными москитными сетками). Добротные красивые межкомнатные двери.

В квартире все продумано до мелочей и сделано с любовью. Продается с мебелью и с встроенной техникой. Кухня полностью укомплектована современной техникой последнего поколения: посудомоечная машина, вытяжка, варочная панель, микроволновая печь, духовой шкаф с функцией двойной параллельной готовки, плита электрическая. Установлен новый бойлер. Стиральная машина для удобства вынесена в отдельный шкаф в коридоре. Розетки выведены с дополнительным подключением. Радует приятная энергетика квартиры и качественный ремонт. Окна выходят на обе стороны дома. В квартире отличный раздельный санузел. Имеется 2 просторных застекленных лоджии.

 

Развита инфраструктура дома: магазины, детский сад, школа, амбулатория, отличная транспортная развязка, близость остановок общественного транспорта . Все это существенно сэкономит время пребывания в пути

Идеально подойдет всем, кто ценит хорошее расположение дома, удобную планировку и желание жить в современном развивающемся районе.

Более подробно- по телефону.

Звоните!

А лучше- приезжайте!

Оперативный показ и юридическое сопровождение сделки гарантируем!

Продадим вашу недвижимость для покупки этой.

Работаем с привлечением кредитных средств и с Жилищным балансом.

286 033.60 BYN 97 000.00$ 3 548.79 BYN/м2 1 203.47$/м2
Предложить свою цену
Заполните телефон!
Введите цену или отметьте галочкой "Консультация по кредиту"
Нажимая "Отправить" я даю согласие на обработку персональных данных
Область
Гродненская область
Район области
Гродненский
Район
Ленинский
Микрорайон
Грандичи-3
Кол-во комнат квартиры
3
Кол-во раздельных комнат
3
Площадь(О/Ж/К)
80.60/59.10/26.10
Этаж
13/19
Год постройки
2023
Материалы дома
Панель
Номер и дата договора
483/17 от 30-09-2025
Посмотреть на карте