place
Наши филиалы: Гродно

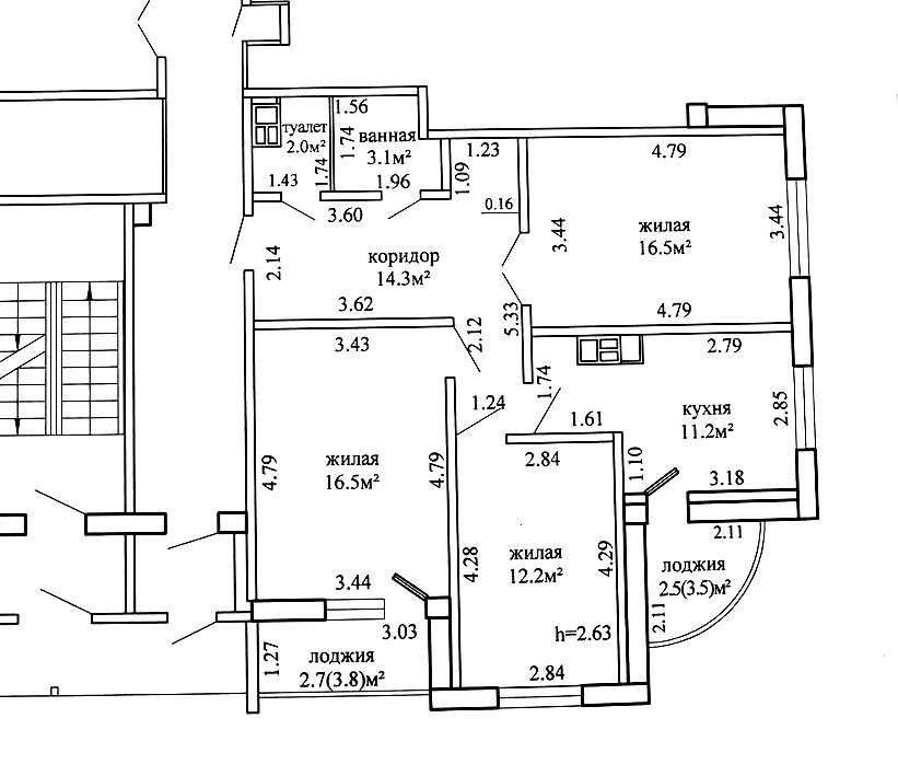
3 комнатная квартира

Продажа Гродно, Суворова, 304А

В продаже 3-комнатная квартира в современном м-не Колбасино, по ул. Суворова, 304а. Квартира расположена на 7-ом этаже 19- этажного панельного дома 2017 года постройки. Общая площадь 75,8 м.кв.(по СНБ 80,1м.кв.), жилая 45,2 м.кв., кухня 11,2 м.кв. Высота потолков 2,63 м. В квартире выполнен качественный ремонт. Окна – ПВХ; материал полов – ламинат высокой прочности, плитка; стены – декоративная штукатурка, в детской комнате – обои, в одной комнате установлен кондиционер. Санузел раздельный, облицован плиткой и оборудован современной сантехникой (на время отключения горячей воды имеется бойлер). Две утепленные лоджии. Входная дверь металлическая. Квартира полностью готова к проживанию, т.к. оснащена всей необходимой мебелью и техникой. В доме установлено видеонаблюдение и домофон, 2 лифта. Во дворе имеется парковка для автомобилей с достаточным количеством парковочных мест, современная детская площадка. В шаговой доступности: школа №37, 4 гимназия, детские сады, магазины, ТЦ, аптеки, Юбилейное озеро, остановки общественного транспорта.

Возможна покупка в кредит, а также с привлечением «Жилищного баланса». Поможем продать вашу недвижимость для покупки этой! Более подробную информацию можно узнать по телефону.

286 033.60 BYN 97 000.00$ 3 773.52 BYN/м2 1 279.68$/м2
Предложить свою цену
Заполните телефон!
Введите цену или отметьте галочкой "Консультация по кредиту"
Нажимая "Отправить" я даю согласие на обработку персональных данных
Область
Гродненская область
Район области
Гродненский
Район
Октябрьский
Микрорайон
Колбасино
Кол-во комнат квартиры
3
Кол-во раздельных комнат
3
Площадь(О/Ж/К)
75.80/45.20/11.20
Этаж
7/19
Год постройки
2017
Материалы дома
Панель
Балконы
Лоджия: 2
Сан. узел (кол-во)
Раздельный: 1
Номер и дата договора
426/17 от 05-09-2025
Посмотреть на карте