place
Наши филиалы: Гродно

3 комнатная квартира

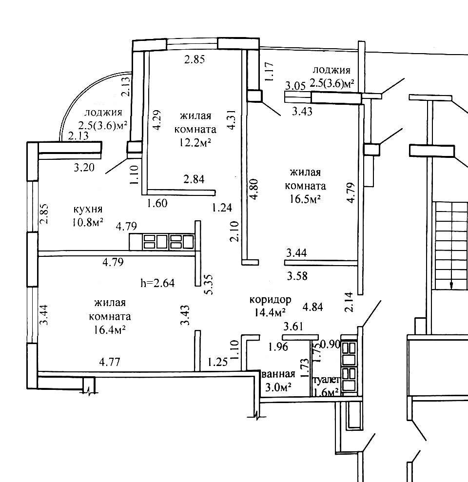
Продажа Гродно, Старомалыщинская, 116

Продается новая 3-комнатная квартира ул. Старомалыщинская д.116 идеальный 13 этаж/18 этажного панельного жилого дома. Год постройки 2025. Площадь общая 79.9 , жилая 45.1, кухня 10.8 м2. Две лоджии с панорамным остеклением в пол 3.6 м2, 3.6 м2.

Водяное отопление в доме!

В квартире сделана вся электрика (можно перенести на ваше усмотрение). Раздельный санузел. Хороший вид из окон. Чистый аккуратный подъезд, видеонаблюдение по периметру дома. Два грузопассажирских лифта. Есть кладовка на лестничной клетке!

За домом просторная авто парковка.

Возможна покупка в кредит!

Поможем продать вашу недвижимость для покупки этой!

За подробной информацией просьба обращаться по телефону и пишите Viber, Telegram. Возможен торг!

187 531.63 BYN 65 900.00$ 2 347.08 BYN/м2 824.78$/м2
Предложить свою цену
Заполните телефон!
Введите цену или отметьте галочкой "Консультация по кредиту"
Нажимая "Отправить" я даю согласие на обработку персональных данных
Область
Гродненская область
Район области
Гродненский
Район
Ленинский
Микрорайон
Грандичи-23
Кол-во комнат квартиры
3
Кол-во раздельных комнат
3
Площадь(О/Ж/К)
79.90/45.10/10.80
Этаж
13/18
Год постройки
2025
Материалы дома
Панель
Сан. узел (кол-во)
Раздельный: 1
Номер и дата договора
574/17 от 12-11-2025
Посмотреть на карте