place
Наши филиалы: Гродно

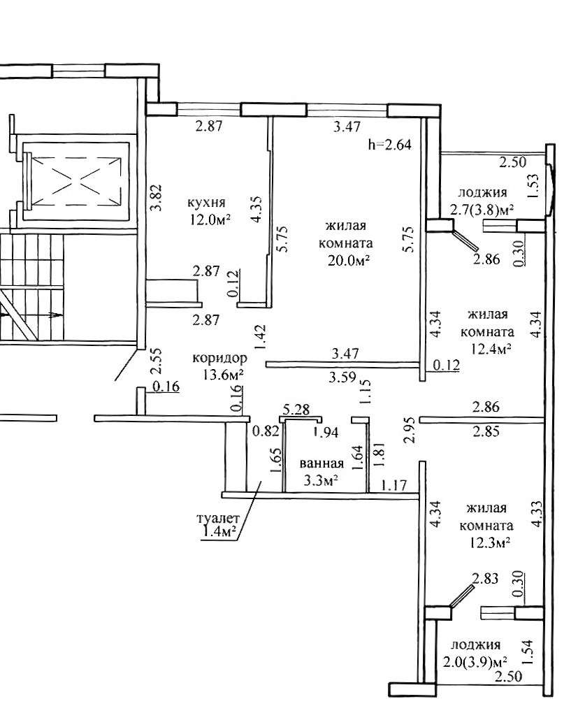
3 комнатная квартира

Продажа Гродно, Старомалыщинская, 106

Продается 3-комнатная квартира ул.Старомалыщинская 106 идеальный 4 этаж/8 этажного панельного жилого дома,выход с подъезда на две стороны дома. Год постройки 2023. Площадь общая 79.7 , жилая 44.7, просторная кухня 12.0 м2. Две лоджии 3.9 м2, 3.8 м2.

В квартире сделана вся электрика (можно перенести на ваше усмотрение). Раздельный санузел. Хороший вид из окон. Чистый аккуратный подъезд, видеонаблюдение по периметру дома. Один грузопассажирский лифт. Есть место для подвала со своей ячейкой!

За домом просторная авто парковка.

Возможна покупка в кредит!

Поможем продать вашу недвижимость для покупки этой!

За подробной информацией просьба обращаться по телефону и пишите Viber, Telegram. Возможен торг!

200 223.52 BYN 67 900.00$ 2 512.20 BYN/м2 851.94$/м2
Предложить свою цену
Заполните телефон!
Введите цену или отметьте галочкой "Консультация по кредиту"
Нажимая "Отправить" я даю согласие на обработку персональных данных
Область
Гродненская область
Район области
Гродненский
Район
Ленинский
Микрорайон
Грандичи-1
Кол-во комнат квартиры
3
Кол-во раздельных комнат
3
Площадь(О/Ж/К)
79.70/44.70/12.00
Этаж
4/8
Год постройки
2023
Материалы дома
Панель
Сан. узел (кол-во)
Раздельный: 1
Номер и дата договора
514/17 от 13-10-2025
Посмотреть на карте