place
Наши филиалы: Гродно

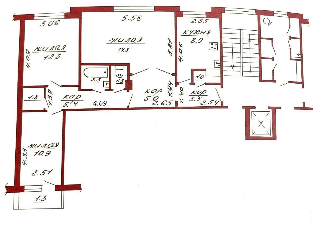
3 комнатная квартира

Продажа Гродно, Репина, 31

В продаже 3-комн. квартира , ул. Репина д. 31.

Квартира чешской планировки. Дом панельный.

Площадь: общая 72,1 м2, жилая 42,7 м2, кухня 8,9 м2.

Этаж : 4/9 этажного дом. Есть лифт.

1983 год постройки.

Планировка: три комнаты (две комнаты 12.5 и 10.9м2 — на разные стороны, одна большая - 19,3м2).

Санузел: раздельный.

В квартире установлены стеклопакеты ( кроме одной комнаты). Балкон остеклен деревянной рамой. Потолоки 2,50м, окрашены.

Квартира в аккуратном состоянии. Можно заехать и сделать ремонт под себя.

На этаже имеется кладовая.

 

Рядом с домом супермаркет «Евроопт», детские сады, школа, гимназия. В нескольких минутах от дома- озеро, для прогулок и отдыха.

Удобная транспортная доступность — остановки в пешей доступности.

 

Расположение дома идеально подходит для спокойной и комфортной семейной жизни.

 

Звоните или напишите в удобный для Вас мессенджер:Viber | Telegram | WhatsApp.

Ответим на Ваши вопросы, предоставим всю необходимую информацию.

Поможем продать вашу недвижимость для покупки этой. Юридическое сопровождение сделки.

180 672.00 BYN 64 000.00$ 2 505.86 BYN/м2 887.66$/м2
Предложить свою цену
Заполните телефон!
Введите цену или отметьте галочкой "Консультация по кредиту"
Нажимая "Отправить" я даю согласие на обработку персональных данных
Область
Гродненская область
Район области
Гродненский
Район
Октябрьский
Микрорайон
Фолюш
Кол-во комнат квартиры
3
Кол-во раздельных комнат
3
Площадь(О/Ж/К)
72.10/42.70/8.90
Этаж
4/9
Год постройки
1983
Материалы дома
Панель
Балконы
Балкон: 1
Сан. узел (кол-во)
Раздельный: 1
Номер и дата договора
143/17 от 23-02-2026
Посмотреть на карте