place
Наши филиалы: Гродно

3 комнатная квартира

Продажа Гродно, Победы, 12

Продаётся квартира (изолированная, с отдельным входом) в добротном кирпичном доме (на 4 квартиры), 1952 года постройки, на улице Победы-12.

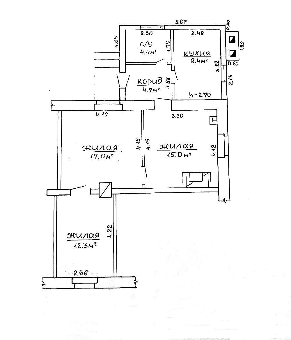
Общая площадь квартиры 62,8 кв. м, жилая-44,3 кв.м. В доме 3 комнаты (15.0 кв.м; 17.0 кв.м; 12.3 кв.м); кухня-9.4 кв.м. Центральное газовое отопление. Высота помещений-2,94м. Просторный совмещённый санузел -4,4 кв.м.(с душевой). Коридор со встроенным шкафом-4,7 кв.м. Прочный фундамент даёт возможность постройки 2го этажа. Дом оштукатурен. Крыша-шифер. Забор из сетки-рабицы и дерева. К дому прилегает земельный участок. Непосредственно за квартирой закреплён участок размером 0,0351га. Имеется гараж (металлический) и хозпостройка. Есть место для небольшого огорода или зоны барбекю. Произрастают вишни, виноград, смородина. К продаваемой квартире возможно подъехать на личном транспорте.

Дом очень тёплый. На полу-ламинат, плитка. Все окна в жилых помещениях, санузле и кухне-ПВХ. Установлены все счётчики. Входная дверь-металлическая. Подведён интернет. Канализация-центральная, отопление-газовое.

Квартира ухоженная, с жилым ремонтом. В зале- большой работающий камин, что даёт возможность приятно коротать время в холодные вечера! А в одной из спальных комнат можно дополнительно добавить уюта, растопив печь… Высокие стены дают возможность разместить на них любимые фото или картины!

В шаговой доступности-остановки общественного транспорта, ТЦ Корона, магазин Маяк, строительный магазин, поликлиника№3, строительное училище, недалеко находится СШ№3, детский сад, Беларусбанк, мини рынок Принеманский.

Торг уместен.

Поможем продать Вашу недвижимость для покупки этого дома! Работаем с кредитами, с «Жилищным балансом», с семейным капиталом!

235 904.00 BYN 80 000.00$ 3 756.45 BYN/м2 1 273.89$/м2
Предложить свою цену
Заполните телефон!
Введите цену или отметьте галочкой "Консультация по кредиту"
Нажимая "Отправить" я даю согласие на обработку персональных данных
Область
Гродненская область
Район области
Гродненский
Район
Октябрьский
Кол-во комнат квартиры
3
Кол-во раздельных комнат
3
Площадь(О/Ж/К)
62.80/44.30/9.40
Этаж
1/1
Год постройки
1952
Материалы дома
Кирпич
Сан. узел (кол-во)
Совмещенный: 1
Номер и дата договора
393/17 от 27-08-2025
Посмотреть на карте