place
Наши филиалы: Гродно

3 комнатная квартира

Продажа Гродно, Огинского, 17

Продается отличная светлая просторная 3-комнатная квартира, расположенная в развитом молодом районе города по ул. Огинского 17. Монолитный дом 2019 года, идеальный 4 этаж из 16.

Уютный зеленый двор, удобная большая парковка , хорошая детская площадка, аккуратный чистый подьезд, спокойные соседи . Все это сделает ваше проживание комфортным.

Развитая инфраструктура дома: магазины, ТЦ Парус , детский сад, школа ,поликлиника ,отличная транспортная развязка, близость остановок общественного транспорта . Все это существенно сэкономит время пребывания в пути .

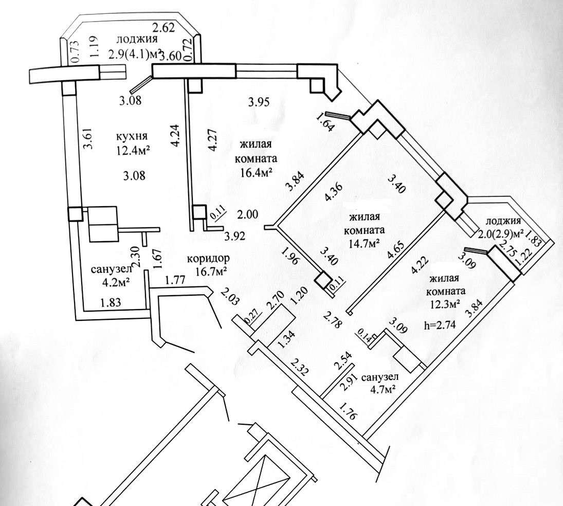
Квартира в отличном состоянии, с хорошей продуманной планировкой. Продается с мебелью и с встроенной техникой . Кухня полностью укомплектована, плита электрическая. Радует приятная энергетика квартиры и качественный ремонт. Окна выходят на обе стороны дома.

Параметры квартиры: общая площадь- 81,4 кв м, жилая площадь- 44,7 кв м, кухня- 16 кв м.

Материал полов: плитка и ламинат. Окна ПВХ. Добротные красивые межкомнатные двери.

В квартире 2 отличных, совместных санузла. Имеется 2 просторных застекленных лоджии с продуманной зоной отдыха.

 

Идеально подойдет всем, кто ценит хорошее расположение дома , удобную планировку и желание воплощать смелые дизайнерские решения.

Более подробно- по телефону.

Звоните!

А лучше- приезжайте!

Оперативный показ и юридическое сопровождение сделки гарантируем!

Продадим вашу недвижимость для покупки этой.

265 097.12 BYN 89 900.00$ 3 256.71 BYN/м2 1 104.42$/м2
Предложить свою цену
Заполните телефон!
Введите цену или отметьте галочкой "Консультация по кредиту"
Нажимая "Отправить" я даю согласие на обработку персональных данных
Область
Гродненская область
Район области
Гродненский
Район
Октябрьский
Микрорайон
Южный-3
Кол-во комнат квартиры
3
Кол-во раздельных комнат
3
Площадь(О/Ж/К)
81.40/44.70/16.00
Этаж
4/16
Год постройки
2019
Материалы дома
Монолит
Балконы
Лоджия: 2
Сан. узел (кол-во)
Совмещенный: 2
Номер и дата договора
469/17 от 25-09-2025
Посмотреть на карте