place
Наши филиалы: Гродно

3 комнатная квартира

Продажа Гродно, Гротгера, 8

Предлагается к продаже квартира в блокированном жилом доме с ухоженным земельным участком площадью 0,0599 га, расположенная в самом центре города возле спортивного комплекса «Неман», по адресу: г. Гродно, ул. Гротгера.

Это отличный вариант для активных людей, которые ценят свое время, но при этом хотят жить в частном доме.

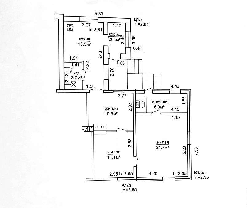
Год постройки -1958, построена пристройка и обложен кирпичом в 2001 году. Материал стен - брус, пристройка из г/с блоков, полностью обложен кирпичом, крыша покрыта шифером, окна деревянные. Стены оклеены обоями. Общая площадь дома составляет 69,3 м², жилая площадь — 43,6 м². Имеется печь.

Коммуникации: газ-центральный (отопление газовое), водопровод -центральный, канализация -септик, центральная канализация идет по улице.

Планировка включает три жилые комнаты, кухню площадью 13,3 м², санузел/душевая (3 м²), топочную (6 м²) и коридор. Высота потолков — 2,65 м.

Земельный участок находится на праве пожизненного наследуемого владения. На участке оборудованы хозяйственные постройки, имеется гараж. Территория огорожена металлическим забором, вымощена бетонными дорожками. Участок ухожен, есть плодовые деревья и теплица для выращивания овощей.

Дом расположен в жилом районе с удобным доступом к городской инфраструктуре, все в пешей доступности.

Юридическое сопровождение сделки гарантируем.

Работаем с привлечением кредита, семейного капитала, ПК «Жилищный баланс».

Звоните, будем рады выслушать Ваши предложения!

206 416.00 BYN 70 000.00$ 2 978.58 BYN/м2 1 010.10$/м2
Предложить свою цену
Заполните телефон!
Введите цену или отметьте галочкой "Консультация по кредиту"
Нажимая "Отправить" я даю согласие на обработку персональных данных
Область
Гродненская область
Район области
Гродненский
Район
Ленинский
Микрорайон
Переселка
Кол-во комнат квартиры
3
Кол-во раздельных комнат
3
Площадь(О/Ж/К)
69.30/43.60/13.30
Этаж
1/1
Год постройки
1958
Материалы дома
Дерево
Сан. узел (кол-во)
Совмещенный: 1
Номер и дата договора
63/17 от 08-05-2025
Посмотреть на карте