place
Наши филиалы: Гродно

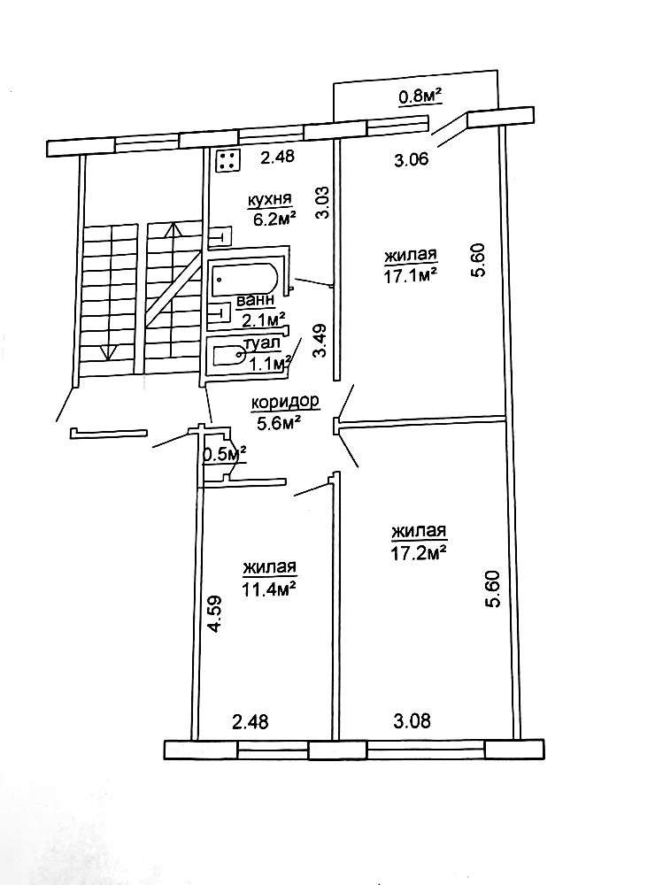
3 комнатная квартира

Продажа Гродно, Домбровского, 11

В продаже трехкомнатная квартира, расположенная по адресу ул. Домбровского 11. Панельный дом 1972 года постройки. 4 этаж из 5.

Хорошее месторасположение! Окружающий район обладает развитой инфраструктурой. В шаговой доступности расположены детские сады, школы, аптеки, магазины, мини-рынок «Форты», зона отдыха «Пышки».

Функциональная и удобная планировка квартиры: общая площадь – 61.2 метров квадратных, жилая – 45,7 метров квадратных, кухня - 6.2 метров квадратных. Окна выходят на две стороны. Санузел раздельный. Металлическая входная дверь. Квартира без ремонта, что дает возможность воплотить любой проект и сделать квартиру своей мечты. За квартирой закреплена подвальная ячейка. Не угловая.

Более подробная информация по телефону.

Звоните! Смотрите! Покупайте!

132 401.12 BYN 44 900.00$ 2 163.42 BYN/м2 733.66$/м2
Предложить свою цену
Заполните телефон!
Введите цену или отметьте галочкой "Консультация по кредиту"
Нажимая "Отправить" я даю согласие на обработку персональных данных
Область
Гродненская область
Район области
Гродненский
Район
Ленинский
Микрорайон
Форты-1
Кол-во комнат квартиры
3
Кол-во раздельных комнат
3
Площадь(О/Ж/К)
61.20/45.70/6.20
Этаж
4/5
Год постройки
1972
Материалы дома
Панель
Балконы
Балкон: 1
Сан. узел (кол-во)
Раздельный: 1
Номер и дата договора
360/17 от 18-08-2025
Посмотреть на карте