place
Наши филиалы: Гродно

3 комнатная квартира

Продажа Гродно, Брикеля, 9 к.1

Мечтали о готовой квартире с просторной кухней ?

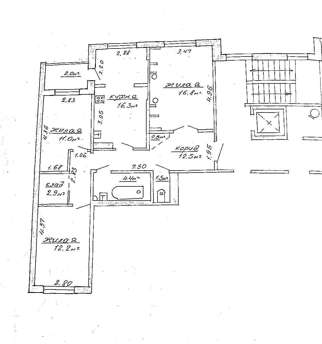
В продаже современная 3-комнатная квартира ул. Брикеля дом 9/1 8 этаж/9 этажного панельного жилого дома. Год постройки 2002.

Площадь общая/жилая 80./ 40.0 , кухня 16.3 м2 с выходом на лоджию. Раздельный санузел. Окна стеклопакеты ПВХ, входная металлическая дверь, на полу ламинат, керамическая плитка. В шаговой доступности (школа № 28, ясли-сад № 96,детский сад № 64, магазин Санта ,Пегас). Отличный вид из окон. Чистый аккуратный подъезд. В доме просторная лестничная клетка. Один пассажирский лифт. Имеется подвал со своей ячейкой!

За домом просторная авто парковка. Вблизи дома остановки общественного транспорта. Квартира отлично подойдет большой и дружной семье, людям ценящим комфорт!

Поможем продать вашу недвижимость для покупки этой!

За подробной информацией просьба обращаться по телефону и пишите Viber, Telegram.

268 316.16 BYN 89 600.00$ 3 353.95 BYN/м2 1 120.00$/м2
Предложить свою цену
Заполните телефон!
Введите цену или отметьте галочкой "Консультация по кредиту"
Нажимая "Отправить" я даю согласие на обработку персональных данных
Область
Гродненская область
Район области
Гродненский
Район
Ленинский
Кол-во комнат квартиры
3
Кол-во раздельных комнат
3
Площадь(О/Ж/К)
80.00/40.00/16.30
Этаж
8/9
Год постройки
2002
Материалы дома
Панель
Балконы
Лоджия: 1
Сан. узел (кол-во)
Раздельный: 1
Номер и дата договора
537/17 от 22-10-2025
Посмотреть на карте