place
Наши филиалы: Гродно

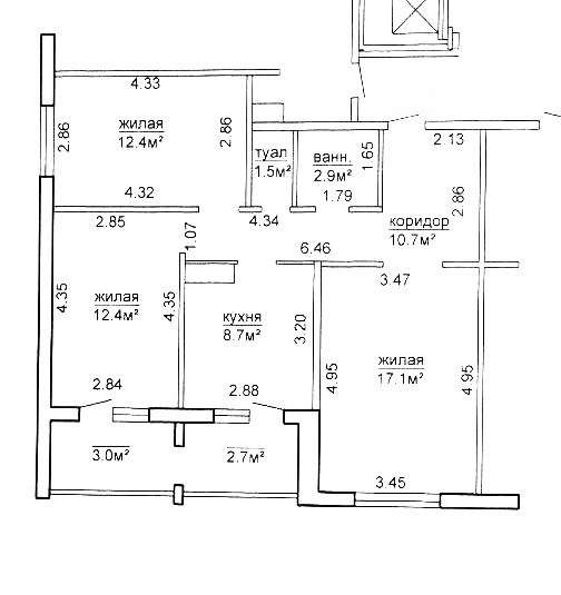
3 комнатная квартира

Продажа Гродно, Белые Росы, 73

В продаже 3-комнатная квартира на Девятовке по ул. Белые Росы, 73.

Квартира расположена на 4 этаже 8-этажного панельного дома 2010 года постройки. Площадь по СНБ 71,4 м.кв.; жилая 41,9 м.кв.; кухня 8,7 м.кв.; высота потолков 2,64 м.

Квартира чистая и светлая, полностью готова к проживанию.

В квартире сделан косметический ремонт. Из кухни и спальни есть выходы лоджию. Комнаты светлые, на полу линолеум.

Новым собственникам останется кухонный гарнитур, мебель в спальне и детской, шкаф-купе.

Чистый, аккуратный и тихий двор с детской площадкой. Достаточное количество парковочных мест в любое время суток.

Дом расположен в районе с развивающейся инфраструктурой, все необходимое в пешей доступности :остановки общественного транспорта, детские сады, школы, магазины, аптеки; АЗС и мн. др.

206 416.00 BYN 70 000.00$ 2 890.97 BYN/м2 980.39$/м2
Предложить свою цену
Заполните телефон!
Введите цену или отметьте галочкой "Консультация по кредиту"
Нажимая "Отправить" я даю согласие на обработку персональных данных
Область
Гродненская область
Район области
Гродненский
Район
Ленинский
Микрорайон
Девятовка-7
Кол-во комнат квартиры
3
Кол-во раздельных комнат
3
Площадь(О/Ж/К)
71.40/41.90/8.70
Этаж
4/8
Год постройки
2010
Материалы дома
Панель
Балконы
Лоджия: 1
Сан. узел (кол-во)
Раздельный: 1
Номер и дата договора
122/6 от 26-02-2024
Посмотреть на карте