place
Наши филиалы: Гродно

2 комнатная квартира

Продажа Гродно, Захарова, 24

Продается отличная светлая 2-комнатная квартира c современным ремонтом, расположенная в самом центре города , по улице Захарова 24.

Блочный дом 2013 года, 11 этаж из 16 . Прекрасное местоположение дома, район автовокзала. Камеры видеонаблюдения и кодовый замок обеспечат вашу безопасность.

Уютный зеленый двор, аккуратный чистый подъезд, подземный паркинг, детская площадка , спокойные соседи сделают ваше проживание комфортным.

Развитая инфраструктура дома (магазины, евроопт, бизнес- центр Лира, школы, детские сады, заправка, кафе, рынок Скидельский , близость к историческому центру города , автовокзал, ж/д вокзал , хорошая транспортная развязка) существенно сэкономят время.

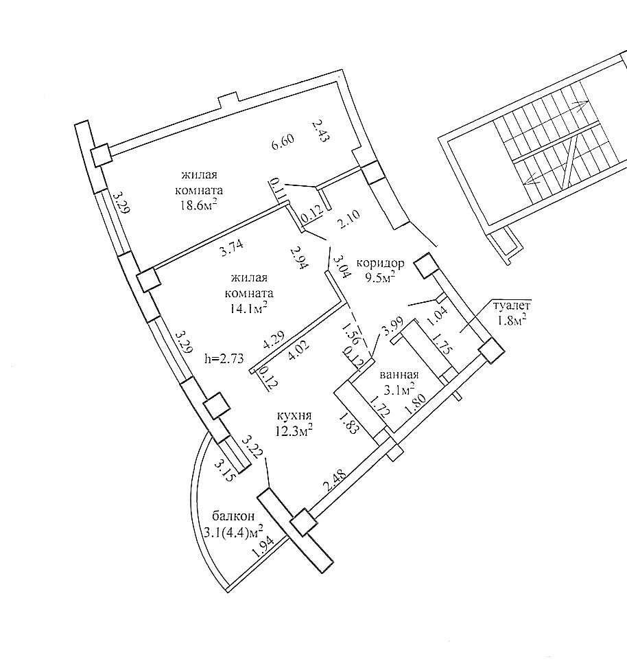
Параметры квартиры: общая площадь- 59,4 кв м (62.5 кв м по СНБ) , жилая площадь- 32,7 кв м, кухня-12,3 кв м.

Уютная большая лоджия может быть отличной зоной отдыха ( 4.4 кв м). Есть 2 вместительных встроенных шкафа.

Квартира продается полностью с мебелью и с техникой. Материал полов: плитка и ламинат. Окна ПВХ. Санузел раздельный, в отличном состоянии. Кухня продается в комплекте с техникой: вытяжка, холодильник, духовой электрический шкаф.

Идеально подойдет всем, кто ценит хорошее расположение дома и удобную планировку.

Более подробно- по телефону.

Звоните!

А лучше- приезжайте!

Работаем с привлечением кредитных средств и с Жилищным балансом.

Оперативный показ и юридическое сопровождение сделки гарантируем.

257 770.70 BYN 89 000.00$ 4 339.58 BYN/м2 1 498.32$/м2
Предложить свою цену
Заполните телефон!
Введите цену или отметьте галочкой "Консультация по кредиту"
Нажимая "Отправить" я даю согласие на обработку персональных данных
Область
Гродненская область
Район области
Гродненский
Район
Октябрьский
Кол-во комнат квартиры
2
Кол-во раздельных комнат
2
Площадь(О/Ж/К)
59.40/32.70/12.30
Этаж
11/16
Год постройки
2013
Материалы дома
Блок
Балконы
Балкон: 1
Сан. узел (кол-во)
Раздельный: 1
Номер и дата договора
566/17 от 08-11-2025
Посмотреть на карте