place
Наши филиалы: Гродно

2 комнатная квартира

Продажа Гродно, Соломовой, 80

В продаже просторная двухкомнатная квартира чешской планировки, расположена в самом зеленом и удобном районе города Гродно, по улице О. Соломовой ,80.

В шаговой доступности расположились: лесопарк Лососно, река Неман, пляж . Квартира расположена на комфортном 4-м этаже панельного 9-ти этажного дома 1980 года постройки. Дом после капитального ремонта.

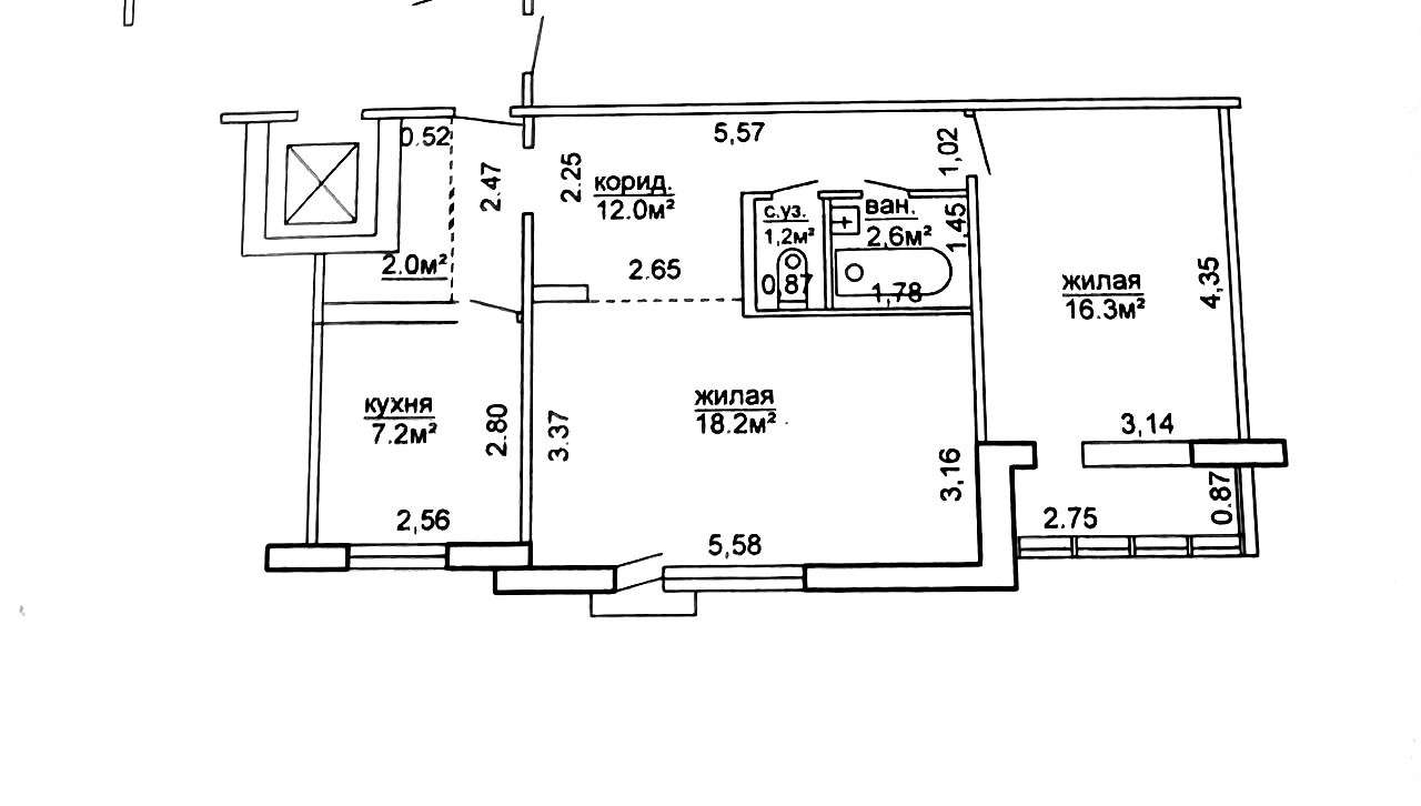
Квартира светлая, отличается удачной планировкой.

Отличный вид из окон. Общая площадь квартиры составляет 60 м2, жилая- 34,5 м2, кухня- 7,2 м2.

В квартире предусмотрена остекленная лоджия с выходом из спальни, в гостиной имеется цветочница. В квартире произведена замена электрики, установлены качественные окна ПВХ фирмы Salamander, по всей квартире залита стяжка, на полу качественный ламинат, на кухне и в коридоре уложена плитка, стены оклеены обоями, межкомнатные двери выполнены из массива едином стиле, потолки окрашены снежкой, входная дверь- металлическая, в коридоре и в спальне оборудованы вместительные шкафы-купе. Современный кухонный гарнитур оборудован качественной бытовой техникой, установлена система очистки воды фирмы Zepter!

Санузел раздельный, установлен умывальник и гигиенический душ. С/у и ванная комната облицованы плиткой, где произведена полная заменена сантехники!

За квартирой закреплена кладовая, находящаяся на этаже.

Во дворе много деревьев и достаточное количество парковочных мест.

В шаговой доступности: магазины, аптеки, больница скорой медицинской помощи, стоматология, кинотеатр Октябрь, мини-рынок Поповича, гимназия 3, СШ 20 с бассейном, детские сады. Рядом остановки общественного транспорта, ведущие во все направления города. Купив эту квартиру, Вы приобретаете для себя и своей семьи полное ощущение комфорта!

Окажем помощь в продаже Вашей недвижимости для покупки этой! Юридическое сопровождение сделки гарантируем. Работаем с привлечением кредита, семейного капитала, Жилищного баланса.

Звоните, будем рады выслушать Ваши предложения!

196 884.60 BYN 66 000.00$ 3 281.41 BYN/м2 1 100.00$/м2
Предложить свою цену
Заполните телефон!
Введите цену или отметьте галочкой "Консультация по кредиту"
Нажимая "Отправить" я даю согласие на обработку персональных данных
Область
Гродненская область
Район области
Гродненский
Район
Октябрьский
Микрорайон
Фолюш
Кол-во комнат квартиры
2
Кол-во раздельных комнат
2
Площадь(О/Ж/К)
60.00/34.50/7.20
Этаж
4/9
Год постройки
1980
Материалы дома
Панель
Балконы
Лоджия: 1
Сан. узел (кол-во)
Раздельный: 1
Номер и дата договора
518/17 от 14-10-2025
Посмотреть на карте