place
Наши филиалы: Гродно

2 комнатная квартира

Продажа Гродно, Парковая, 2

Просторная, светлая, двухкомнатная квартира в экологически чистом районе г. Гродно, ул. Парковая, 2. Квартира под отделку. Функциональная, продуманная планировка. Дом отличается удачным расположением, удобные выезды, хорошая транспортная развязка. До центра города 5 минут на машине, 20 минут пешком.

Развитая инфраструктура (магазины, школа, детский сад, лесопарк «Пышки», р. Неман с оборудованным пляжем, областная больница и другие медицинские учреждения, баня, стадион, ледовый дворец). Рядом с домом удобная парковка, детская площадка.

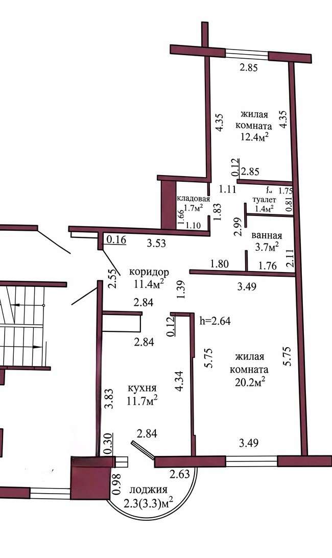
3 этаж 9-тиэтажного дома 2025 года постройки, материал стен – панель. Общая площадь 64.8 кв.м., жилая 32,6 кв.м., кухня 11.7 кв.м. Окна – ПВХ. Сан. узел раздельный.

За дополнительной информацией просьба обращаться по номеру телефона.

Кроме того, здесь Вы можете организовать собственный бизнес как сдача квартиры в аренду.

Бесплатное сопровождение для покупателя! Работаем с кредитом, жилищным балансом. Оперативный показ и юридическое сопровождение сделки гарантируем. Поможем продать вашу недвижимость для покупки этой.

За подробной информацией просьба обращаться по телефону и пишите Viber, Telegram. Возможен торг.

 

225 155.70 BYN 77 000.00$ 3 474.62 BYN/м2 1 188.27$/м2
Предложить свою цену
Заполните телефон!
Введите цену или отметьте галочкой "Консультация по кредиту"
Нажимая "Отправить" я даю согласие на обработку персональных данных
Область
Гродненская область
Район области
Гродненский
Район
Ленинский
Микрорайон
Переселка
Кол-во комнат квартиры
2
Кол-во раздельных комнат
2
Площадь(О/Ж/К)
64.80/32.60/11.70
Этаж
3/9
Год постройки
2025
Материалы дома
Панель
Сан. узел (кол-во)
Раздельный: 1
Номер и дата договора
265/17 от 31-03-2026
Посмотреть на карте