place
Наши филиалы: Гродно

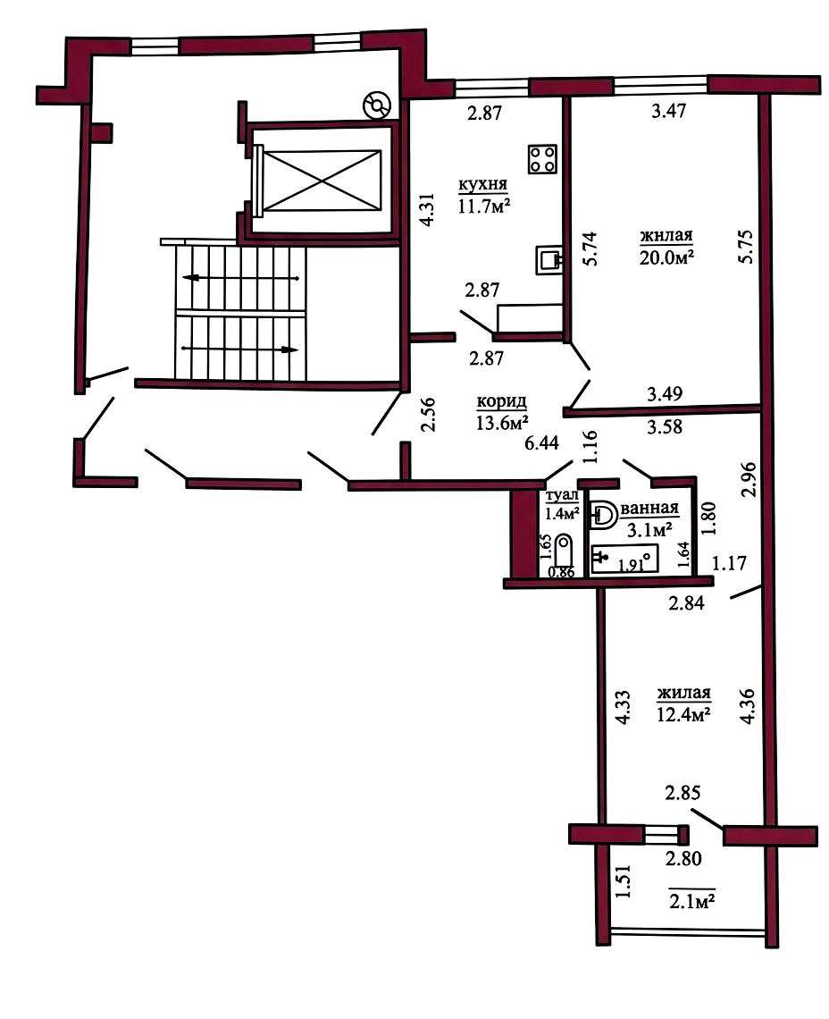
2 комнатная квартира

Продажа Гродно, Огинского, 18

В продаже светлая, просторная и уютная 2-комнатная квартира по ул. Огинского, д.18. Расположена на 6-ом этаже 9-этажного панельного дома 2014 года постройки.

Общая площадь по СНБ - 64,3 м²

Общая площадь - 62,2 м²

Жилая - 32,4 м²

Кухня - 11,7 м²

Высота потолков - 2,64 м.

С/у раздельный облицован плиткой.

В квартире сделан аккуратный жилой ремонт. На полу уложен ламинат, плитка, стены оклеены обоями, потолки ровные.

Лоджия застеклена.

На этаже есть кладовка. При продаже частично останется мебель.

Замечательные соседи.

 

Развитая инфраструктура. Рядом магазины, ТЦ Парус, аптеки, поликлиника, школа, детский сад, остановки общественного транспорта.

210 535.20 BYN 72 000.00$ 3 384.82 BYN/м2 1 157.56$/м2
Предложить свою цену
Заполните телефон!
Введите цену или отметьте галочкой "Консультация по кредиту"
Нажимая "Отправить" я даю согласие на обработку персональных данных
Область
Гродненская область
Район области
Гродненский
Район
Октябрьский
Микрорайон
Южный-2
Кол-во комнат квартиры
2
Кол-во раздельных комнат
2
Площадь(О/Ж/К)
62.20/32.40/11.70
Этаж
6/9
Год постройки
2014
Материалы дома
Панель
Сан. узел (кол-во)
Раздельный: 1
Номер и дата договора
247/17 от 26-03-2026
Посмотреть на карте