place
Наши филиалы: Гродно

2 комнатная квартира

Продажа Гродно, Лидская, 35

Просторная, светлая и стильная двухкомнатная квартира c новым ремонтом и бытовой техникой в центре г. Гродно, ул. Лидская, 35 (дом ЖСПК). Квартира полностью меблирована и оснащена всей необходимой техникой. В отделке использованы современные, высококачественные материалы. Функциональная, продуманная до мелочей планировка и дизайн. Дом отличается удачным расположением, удобные выезды, хорошая транспортная развязка, современные лифты. Установлено видеонаблюдение. Дом располагается далеко от дороги, что обеспечивает тишину.

Развитая инфраструктура (ТЦ «Корона», ТЦ «Материк», Развлекательный центр «Галактика», фитнес зал). Недалеко ТЦ «Тринити». Рядом с домом удобная большая парковка, автосервис, автомойка, детская площадка, детская амбулатория, спортивный стадион. Лесопарк, р. Неман. Исторический центр города в шаговой доступности: старый и новый замок, собор Святого Франциска Ксаверия, костёл и монастырь бригиток, костёл и монастырь бернардинцев, Советская площадь, кафе и рестораны, Гродненский областной драматический театр.

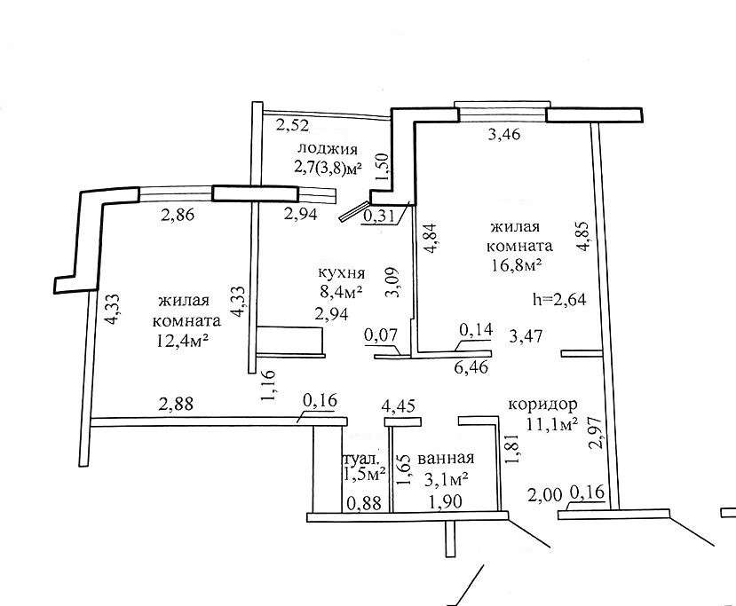
3 этаж 5-тиэтажного дома 2019 года постройки, материал стен - панель. Общая площадь 56.0 кв.м., жилая 29.2кв.м., кухня совмещенная с гостиной. Окна – ПВХ. Сан. узел совмещенный, облицован плиткой. Материал полов – ламинат высокой прочности, плитка. Имеется просторная лоджия, застеклена.

За дополнительной информацией просьба обращаться по номеру телефона.

Кроме того, здесь Вы можете организовать собственный бизнес как сдача квартиры в аренду.

Бесплатное юридическое сопровождение сделки для покупателя, расходы по удостоверению сделки беру на себя! Оперативный показ.

За подробной информацией просьба обращаться по телефону и пишите Viber, Telegram.

239 708.50 BYN 85 000.00$ 4 280.52 BYN/м2 1 517.86$/м2
Предложить свою цену
Заполните телефон!
Введите цену или отметьте галочкой "Консультация по кредиту"
Нажимая "Отправить" я даю согласие на обработку персональных данных
Область
Гродненская область
Район области
Гродненский
Район
Октябрьский
Кол-во комнат квартиры
2
Кол-во раздельных комнат
2
Площадь(О/Ж/К)
56.00/29.20/-
Этаж
3/5
Год постройки
2019
Материалы дома
Панель
Балконы
Лоджия: 1
Номер и дата договора
278/17 от 22-07-2025
Посмотреть на карте