place
Наши филиалы: Гродно

2 комнатная квартира

Продажа Гродно, Кирова, 38

Если Вы хотите жить в атмосферном месте, в самом сердце нашего города и получать эстетическое удовольствие от прекрасного исторического центра, то эта квартира для Вас!

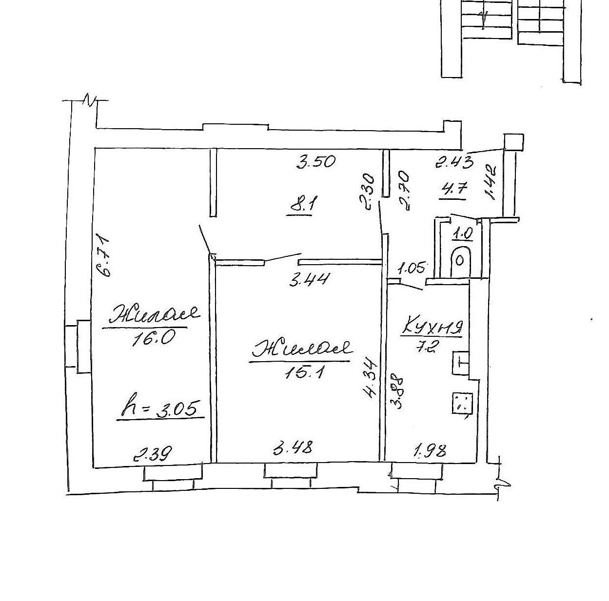
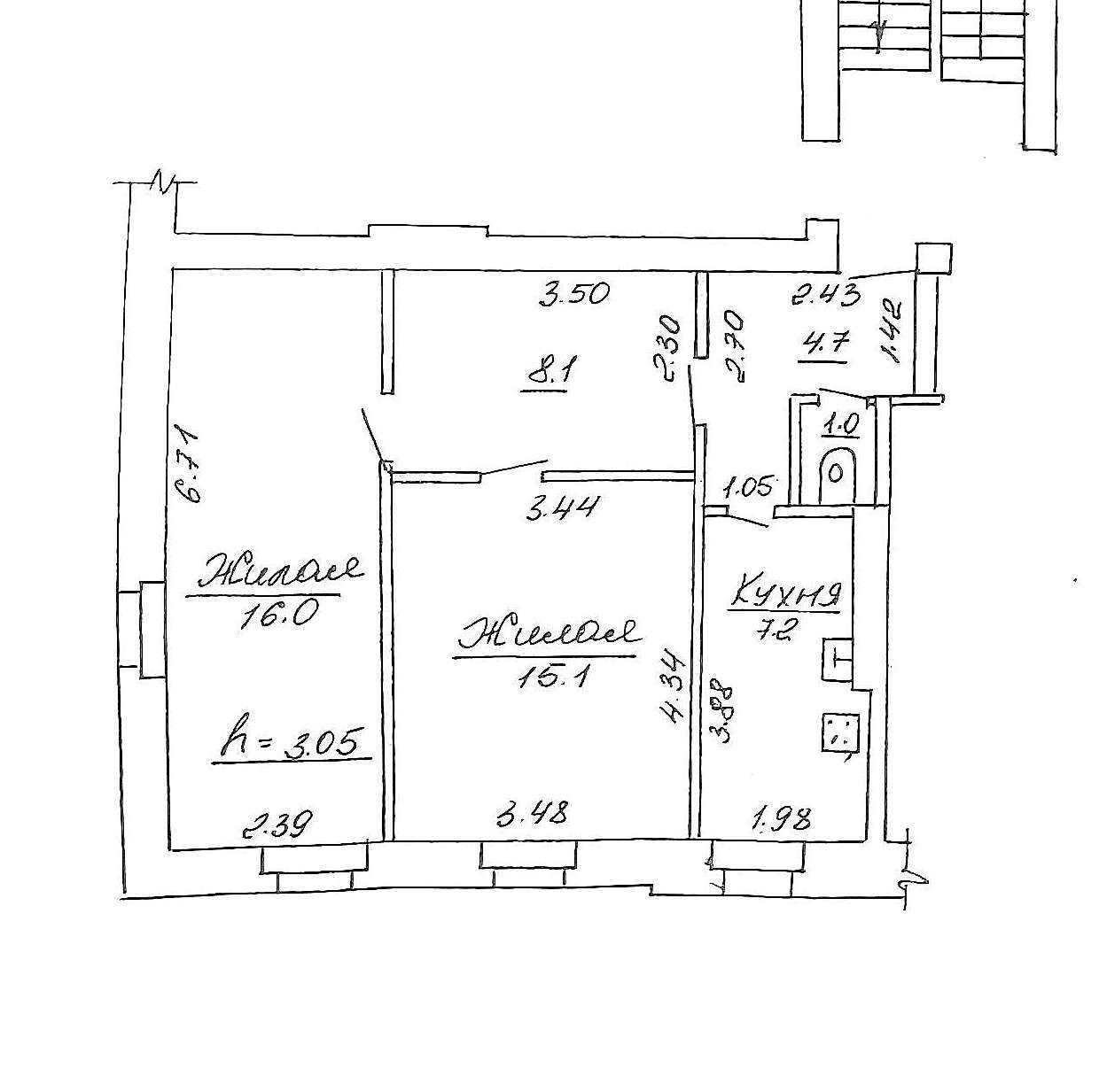
В продаже уютная 2-комнатная квартира с вековой историей по ул. Кирова, 38. Дом 1900 года постройки. Материал стен -кирпич, перекрытия деревянные, полы дощатые, окна -ПВХ. Площадь 52,1 м2. Квартира расположена на 2-ом этаже двухэтажного дома, имеется выход на чердак, который можно использовать в своих целях (например, для сушки белья и т.п.), за квартирой закреплена подвальная ячейка.

Уютный зеленый двор. Оборудована парковка, где всегда есть место для Вашего автомобиля!!!

Так как несущие стены только по периметру, при желании, есть возможность произвести перепланировку на свой вкус! Входная металлическая дверь.

Пешеходная зона начинается от подъезда дома. В шаговой доступности (+~10 минут) автовокзал, Советская площадь, Скидельский рынок, парк Жилибера, главный корпус университета им. Я. Купалы.

Этот объект подойдет для истинных ценителей истории!

Жить в центре города всегда престижно, здесь вы будете находиться в центре событий, так же данный объект недвижимости отличная инвестиция с высокой окупаемостью, ведь Гродно - интереснейший город для туристов!

174 762.00 BYN 60 000.00$ 3 354.35 BYN/м2 1 151.63$/м2
Предложить свою цену
Заполните телефон!
Введите цену или отметьте галочкой "Консультация по кредиту"
Нажимая "Отправить" я даю согласие на обработку персональных данных
Область
Гродненская область
Район области
Гродненский
Район
Ленинский
Кол-во комнат квартиры
2
Кол-во раздельных комнат
2
Площадь(О/Ж/К)
52.10/31.10/-
Этаж
2/2
Год постройки
1900
Материалы дома
Кирпич
Номер и дата договора
653/17 от 24-12-2025
Посмотреть на карте