place
Наши филиалы: Гродно

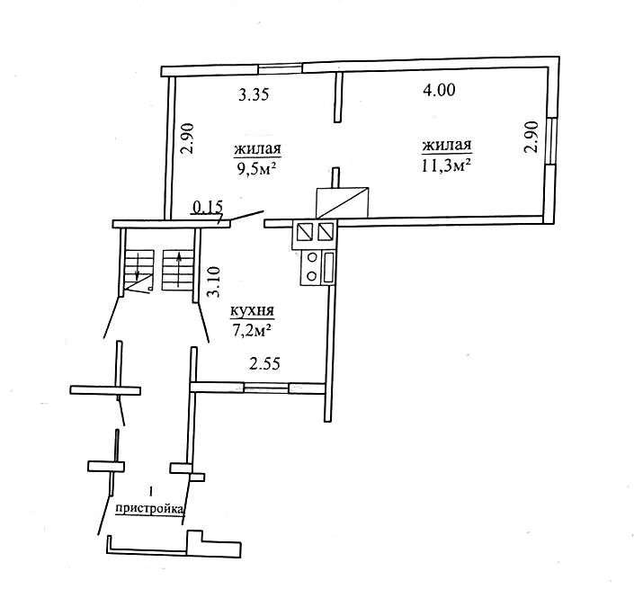
2 комнатная квартира

Продажа Гродно, Гастелло, 4

Предлагается к продаже часть дома, расположенная по улице Гастелло. Состоящая из 2-комнатной вартиры и нежилого помещения.

Площадь квартиры 28/20.8/7,2м2.

Высота помещения 2,72м.

Нежилое помещение 32м2. Высота -3,9м.

Здание деревянное. Окна деревянные стеклопакеты. Крыша шифер .

Электричество в доме. Отопление печное.

Вода, газ , канализация идут по улице.

Хорошее расположение дома, угловой участок.

10 минут до центра города.

На участке есть беседка для отдыха.

 

Звоните или напишите в удобный для Вас мессенджер:Viber | Telegram | WhatsApp, чтобы узнать подробности и договориться о просмотре!

 

Поможем продать вашу недвижимость для покупки этой. Юридическое сопровождение сделки.

71 142.50 BYN 25 000.00$ 2 540.81 BYN/м2 892.86$/м2
Предложить свою цену
Заполните телефон!
Введите цену или отметьте галочкой "Консультация по кредиту"
Нажимая "Отправить" я даю согласие на обработку персональных данных
Область
Гродненская область
Район области
Гродненский
Район
Октябрьский
Микрорайон
Собачья Горка
Кол-во комнат квартиры
2
Кол-во раздельных комнат
2
Площадь(О/Ж/К)
28.00/20.80/7.20
Этаж
1/1
Материалы дома
Дерево
Номер и дата договора
35/17 от 16-01-2026
Посмотреть на карте