place
Наши филиалы: Гродно

1 комнатная квартира

Продажа Гродно, Зана, 12

Уютная однокомнатная квартира с ремонтом!

Улица Зана,12

5 этаж из 5

Год постройки – 1966

Материал стен – кирпич

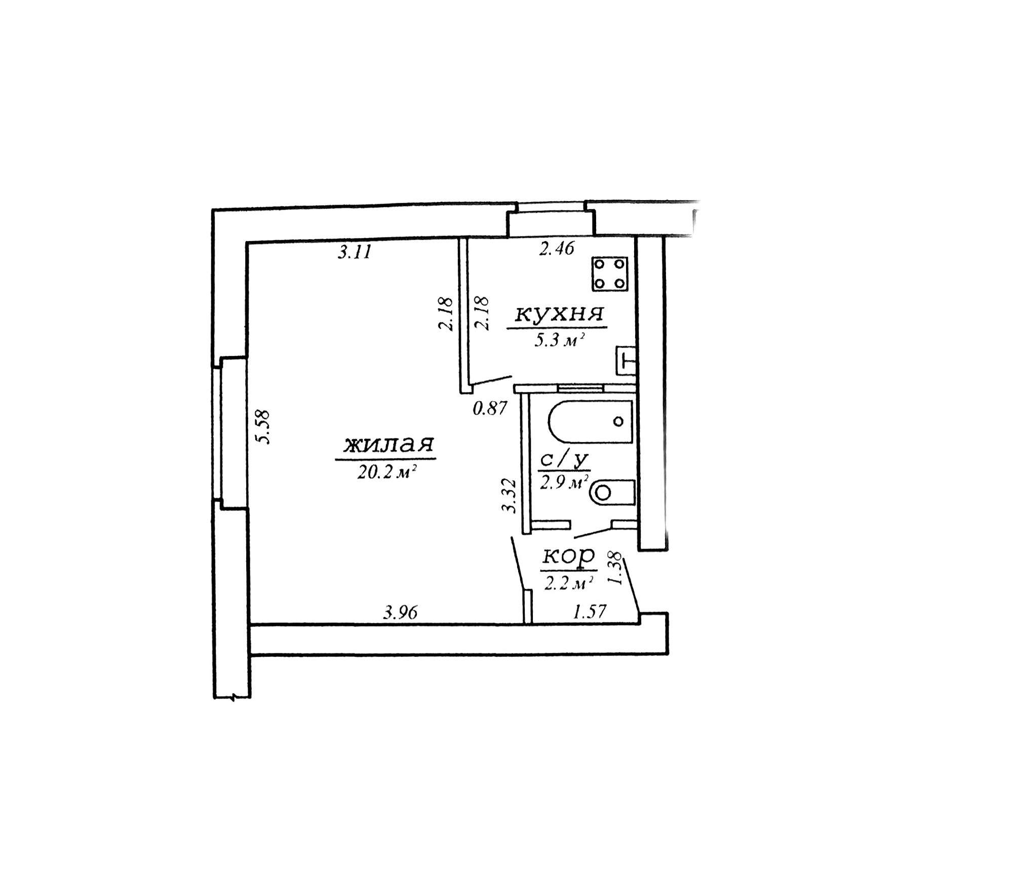
Общая площадь – 30,6 кв. м., жилая – 20,2 кв. м., кухня – 5,3 кв. м.

Установлена газовая колонка

 

Квартира теплая, светлая, с хорошим ремонтом. Заменена электрическая проводка, канализационные трубы. Установлены окна ПВХ. Металлическая входная дверь. Качественные межкомнатные двери МДФ. Натяжной потолок со встроенным точечным освещением. На полу в комнате – ламинат, в кухне и прихожей – плитка. В комнате и прихожей есть вместительные удобные шкафы-купе. Совмещенный санузел облицован плиткой, сантехника в хорошем состоянии. За квартирой закреплена подвальная ячейка. В доме были произведены работы по ремонту и гидроизоляции кровли.

Отличная инфраструктура. Центр города, при этом вдалеке от шумных транспортных потоков. 10 минут пешком до знаковых достопримечательностей города и благоустроенной набережной Немана.

Хорошее предложение для собственной комфортной жизни или выгодной инвестиции!

131 762.40 BYN 44 000.00$ 4 305.97 BYN/м2 1 437.91$/м2
Предложить свою цену
Заполните телефон!
Введите цену или отметьте галочкой "Консультация по кредиту"
Нажимая "Отправить" я даю согласие на обработку персональных данных
Область
Гродненская область
Район области
Гродненский
Район
Октябрьский
Кол-во комнат квартиры
1
Кол-во раздельных комнат
1
Площадь(О/Ж/К)
30.60/20.20/5.30
Этаж
5/5
Год постройки
1966
Материалы дома
Кирпич
Балконы
Нет
Сан. узел (кол-во)
Совмещенный: 1
Номер и дата договора
55/17 от 23-01-2026
Посмотреть на карте