place
Наши филиалы: Гродно

1 комнатная квартира

Продажа Гродно, Малыщинская, 12

Продается отличная светлая 1-комнатная квартира в востребованном районе города , расположенная на улице Малыщинская 12. Панельный дом 2012 года, 1 этаж из 9. Прекрасное местоположение дома.

Современный район, уютный зеленый двор, аккуратный чистый подъезд, спокойные соседи сделают ваше проживание комфортным.

Развита инфраструктура дома : магазины, поликлиника, евроопт, школы, детские сады, заправки, кафе , хорошая транспортная развязка существенно сэкономят время прибывания в пути .

Рядом с домом удобная парковка , есть зарядка для электромобилей , хорошая современная детская площадка.

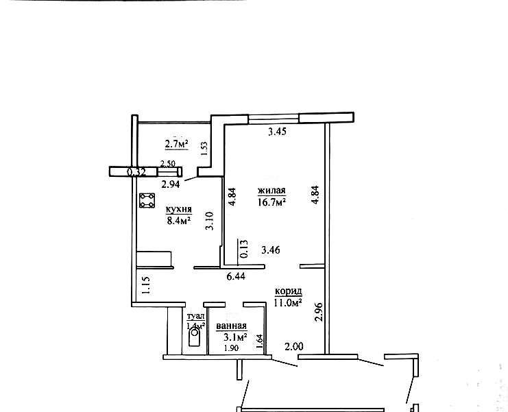
Параметры квартиры: общая площадь- 43,3 кв м по СНБ , жилая площадь- 16,7 кв м, кухня-8,4 кв м.

Материал полов: плитка (санузлы , часть коридора ) и ламинат .

Санузел раздельный, в отличном состоянии . Имеется светлая утепленная застекленная лоджия.

Квартира продается полностью с мебелью и с техникой . Все выдержано в едином стиле. В квартире все продумано до мелочей. Входная металлическая дверь обеспечит безопасность. Натяжные потолки по всей квартире. Встроенная высокая кухня со встроенной техникой: газовая варочная панель Bosh, электрический духовой шкаф Вosh, вытяжка, микроволновая печь ,стиральная машина, холодильник, телевизор, два дивана. Продуман гардеробный шкаф в коридоре. В комнате создана уютная обстановка, есть диван, кровать, комод и телевизор. Прекрасный вид из окна.

Идеально подойдет всем, кто ценит хорошее расположение дома и удобную планировку. Может использоваться как готовый бизнес .

Более подробно- по телефону.

Звоните!

А лучше- приезжайте!

Оперативный показ и юридическое сопровождение сделки гарантируем.

Работаем с привлечением кредитных средств и с Жилищным балансом.

173 364.00 BYN 60 000.00$ 4 003.78 BYN/м2 1 385.68$/м2
Предложить свою цену
Заполните телефон!
Введите цену или отметьте галочкой "Консультация по кредиту"
Нажимая "Отправить" я даю согласие на обработку персональных данных
Область
Гродненская область
Район области
Гродненский
Район
Ленинский
Микрорайон
Девятовка-5
Кол-во комнат квартиры
1
Кол-во раздельных комнат
1
Площадь(О/Ж/К)
43.30/16.70/8.40
Этаж
1/9
Год постройки
2012
Материалы дома
Панель
Балконы
Лоджия: 1
Сан. узел (кол-во)
Раздельный: 1
Номер и дата договора
421/17 от 04-09-2025
Посмотреть на карте