place
Наши филиалы: Гродно

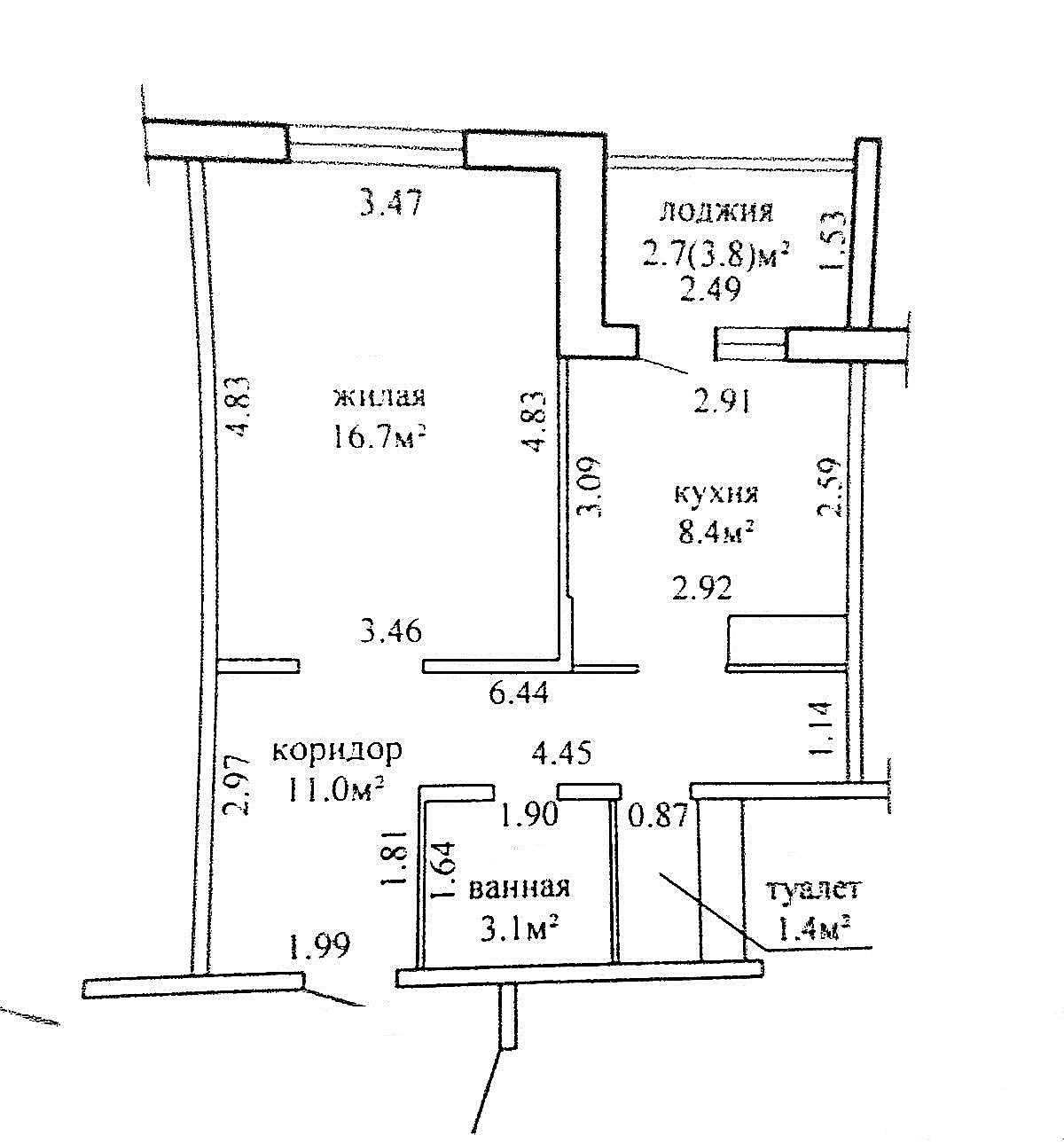
1 комнатная квартира

Продажа Гродно, Лидская, 5

Просторная, светлая однокомнатная квартира c простым ремонтом

центре г. Гродно, ул. Лидская, 5. Дом отличается удачным расположением, удобные выезды, хорошая транспортная развязка. Установлено видеонаблюдение.

Развитая инфраструктура (ТЦ «Корона», ТЦ «Материк», Развлекательный центр «Галактика», фитнес зал). Недалеко ТЦ «Тринити».

8 этаж 9-тиэтажного дома 2016 года постройки, материал стен - панель. Общая площадь 43,3 кв.м., жилая 16.7кв.м., кухня - 8.4 кв.м. Окна – ПВХ. Сан. узел раздельный, облицован плиткой. Имеется просторная лоджия, застеклена.

За дополнительной информацией просьба обращаться по номеру телефона.

Имеется подвальная ячейка. В квартире остаётся вся мебель и бытовая техника.

Кроме того, здесь Вы можете организовать собственный бизнес, как сдача квартиры в аренду.

Поможем выгодно продать Вашу недвижимости для покупки этой!

Юридическое сопровождение сделки гарантируем! Работаем с привлечением кредита, семейного капитала, "Жилищного баланса".

178 352.25 BYN 59 900.00$ 4 118.98 BYN/м2 1 383.37$/м2
Предложить свою цену
Заполните телефон!
Введите цену или отметьте галочкой "Консультация по кредиту"
Нажимая "Отправить" я даю согласие на обработку персональных данных
Область
Гродненская область
Район области
Гродненский
Район
Октябрьский
Кол-во комнат квартиры
1
Кол-во раздельных комнат
1
Площадь(О/Ж/К)
43.30/16.70/8.40
Этаж
8/9
Год постройки
2016
Материалы дома
Панель
Балконы
Лоджия: 1
Сан. узел (кол-во)
Раздельный: 1
Номер и дата договора
545/17 от 27-10-2025
Посмотреть на карте